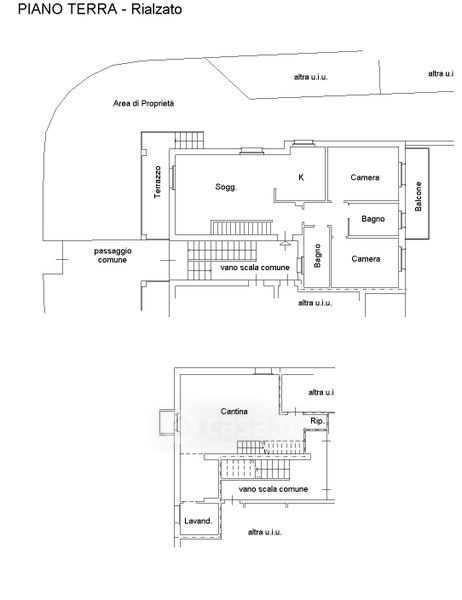
Appartamento in vendita Via Padova , Giussano
Salva
Casa.it
1/29
  • Street View
  • Map