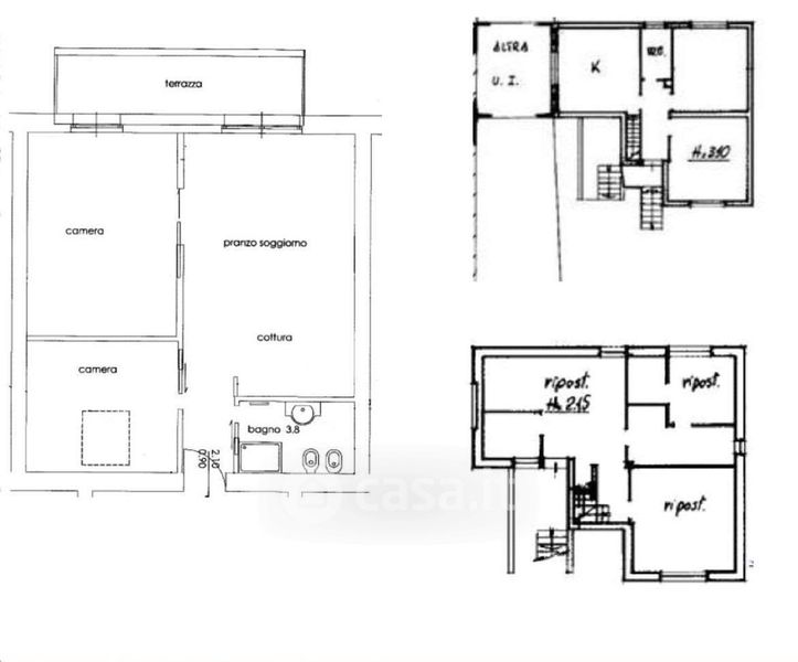
Appartamento in vendita Via Niccolò Tartaglia 3, Gottolengo
Salva
Casa.it
1/31
  • Street View
  • Map