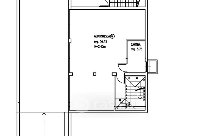
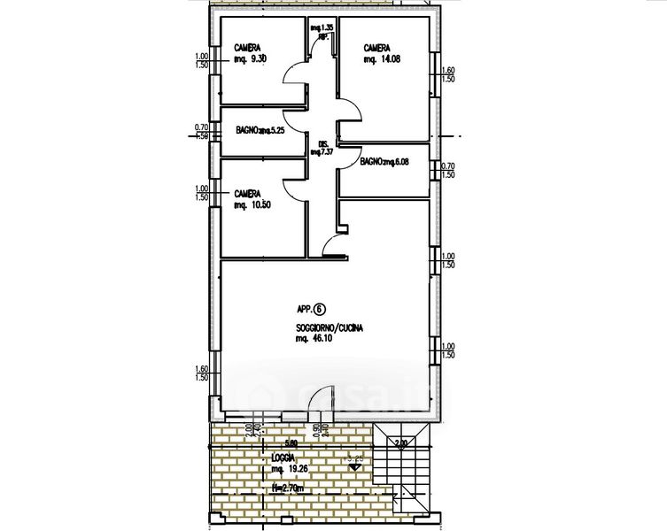
Appartamento in vendita Via dei Ciliegi 15, Gussago
Salva
Casa.it
1/20
  • Street View
  • Map