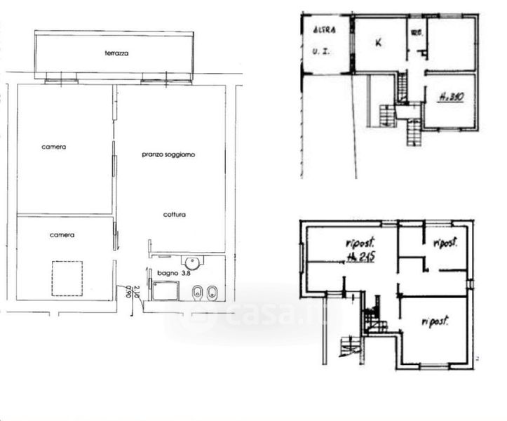
Appartamento in vendita Via Don Bortolo Cotti 67, Gussago
Salva
Casa.it
1/17
  • Street View
  • Map