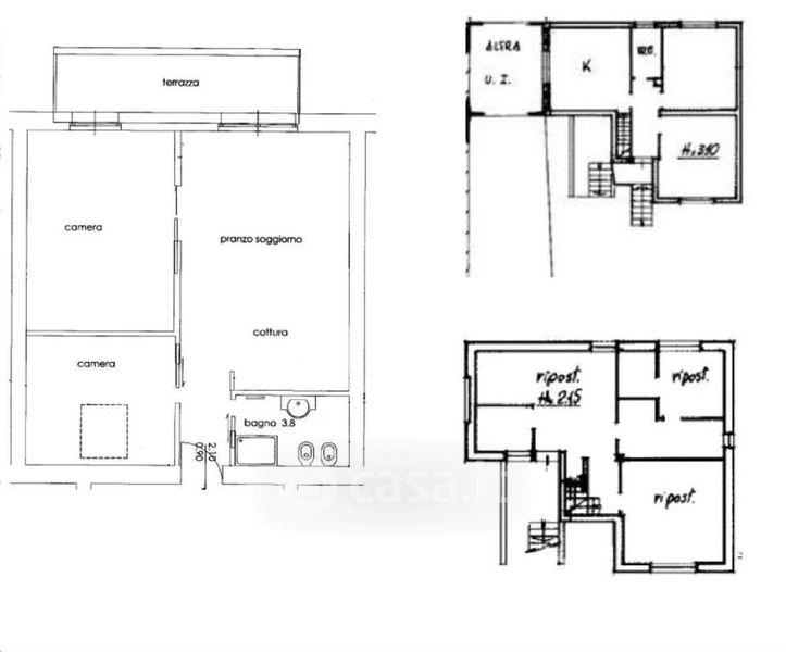
Appartamento in vendita Vicolo Pozzo 1, Isola Dovarese
Salva
Casa.it
1/13
  • Street View
  • Map