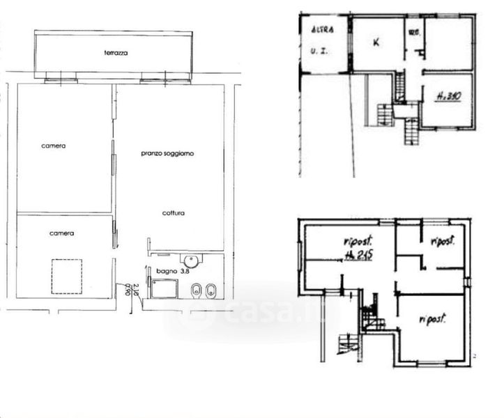
Appartamento in vendita Via Papa Giovanni Paolo II 10, Landriano
Salva
Casa.it
1/15
  • Street View
  • Map