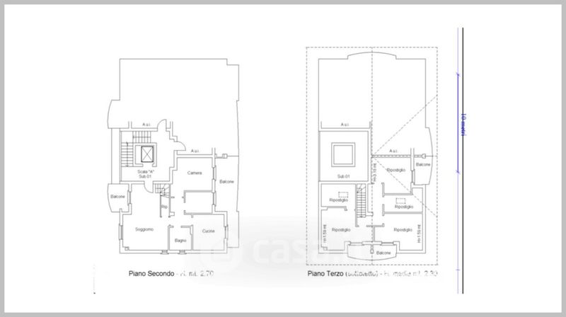
Appartamento in vendita Via Duca D'Aosta , Lardirago
Salva
Casa.it
1/31
  • Street View
  • Map