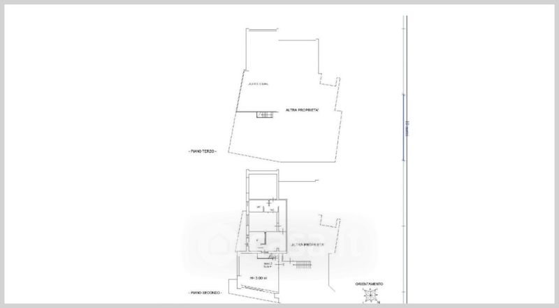
Appartamento in vendita Via della Boschiva , Lavena Ponte Tresa
Salva
Casa.it
1/37
  • Street View
  • Map