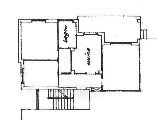
Appartamento in vendita Corso Bergamo 100, Lecco
Salva
Casa.it
1/27
  • Street View
  • Map