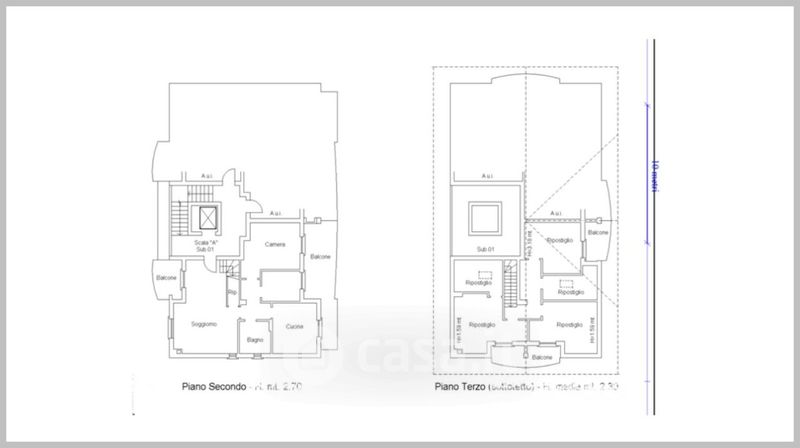
Appartamento in vendita Via Tommaso Campanella , Lecco
Salva
Casa.it
1/37
  • Street View
  • Map