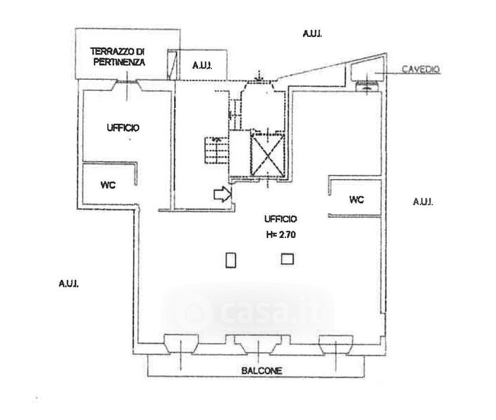
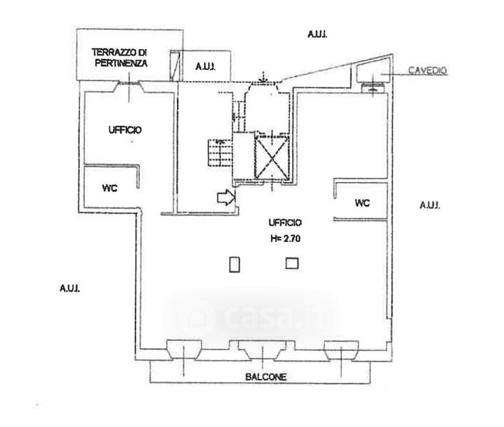
Appartamento in vendita Via Roma 57, Lecco
Salva
Casa.it
1/11
  • Street View
  • Map