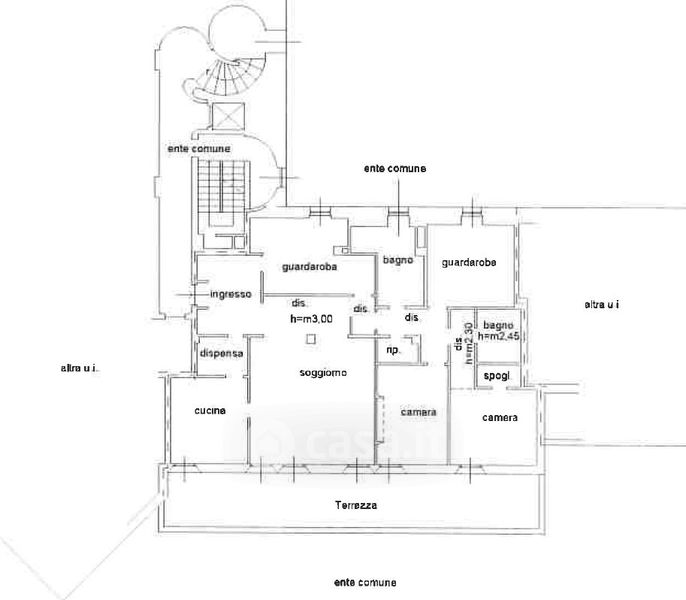
Appartamento in vendita Via Seminario 35, Lecco
Salva
Casa.it
1/59
  • Street View
  • Map