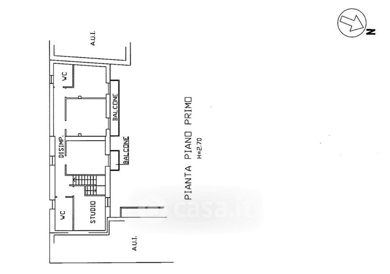
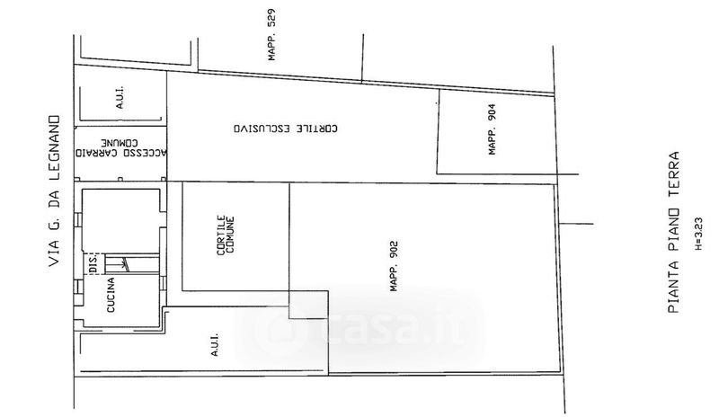
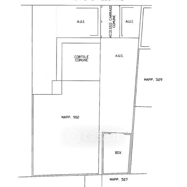
Appartamento in vendita Via Giovanni da Legnano 59, Legnano
Salva
Casa.it
1/6
  • Street View
  • Map