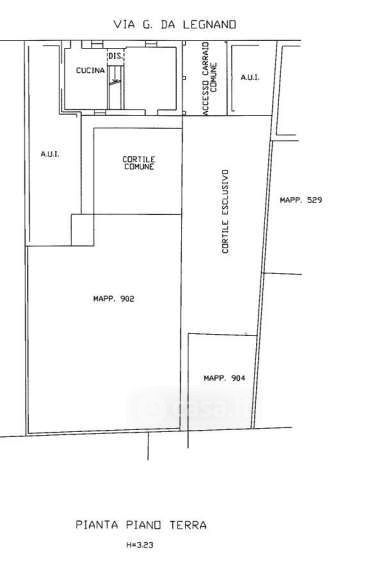
Appartamento in vendita Via Giovanni da Legnano , Legnano
Salva
Casa.it
1/22
  • Street View
  • Map