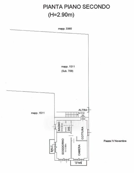
Appartamento in vendita Piazza IV Novembre 3, Lierna
Salva
Casa.it
1/24
  • Street View
  • Map