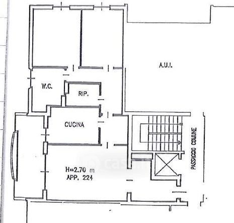
Appartamento in vendita Via Monte Sabotino , Limbiate
Salva
Casa.it
1/29
  • Street View
  • Map