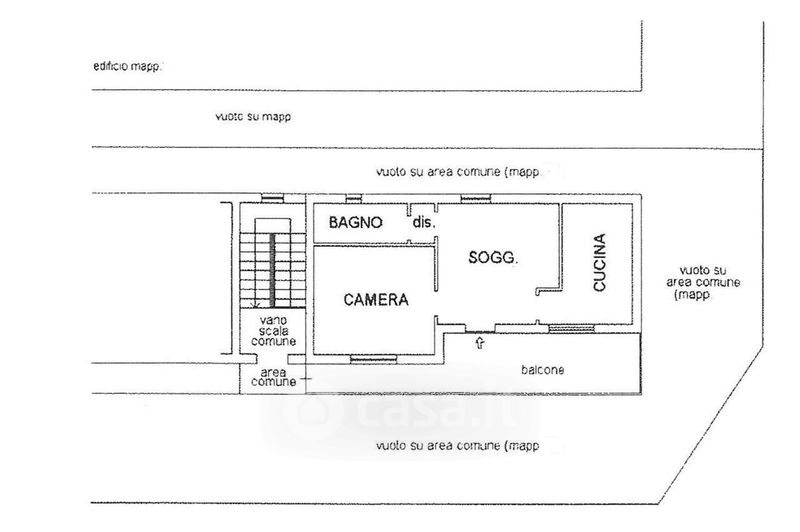
Appartamento in vendita Via Alfredo Catalani , Limbiate
Salva
Casa.it
1/19
  • Street View
  • Map