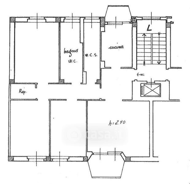
Appartamento in vendita Via Monte Bianco 133, Limbiate
Salva
Casa.it
1/31
  • Street View
  • Map