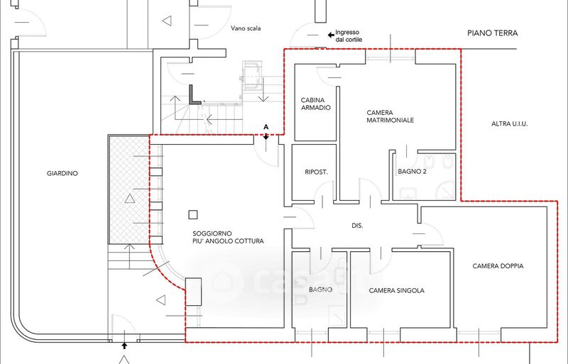
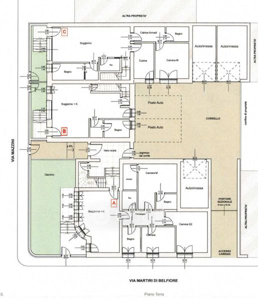
Appartamento in vendita Via Giuseppe Mazzini 11, Lissone
Salva
Casa.it
1/11
  • Street View
  • Map