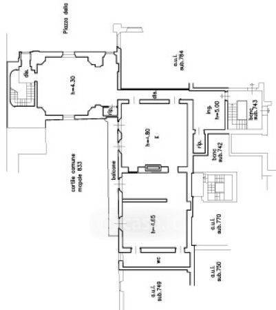
Appartamento in vendita Piazza Vittoria , Locate di Triulzi
Salva
Casa.it
1/23
  • Street View
  • Map