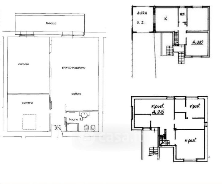
Appartamento in vendita Strada della Fontana 42, Lodi
Salva
Casa.it
1/17
  • Street View
  • Map