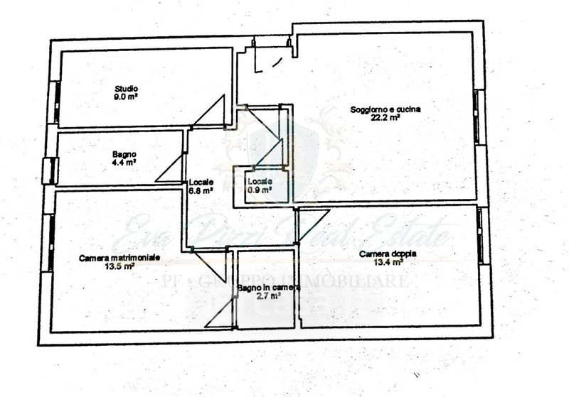
Appartamento in vendita Via San Rocco , Lodi Vecchio
Salva
Casa.it
1/13
  • Street View
  • Map