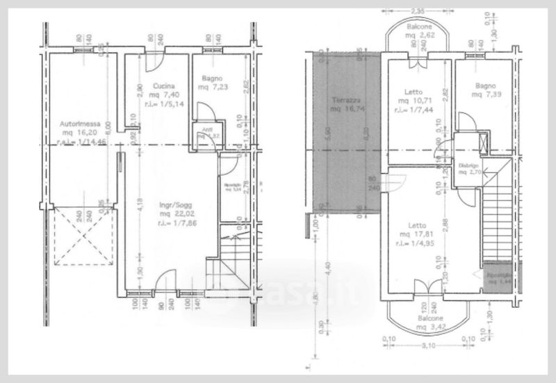
Appartamento in vendita Via Antonio Gramsci , Lodi Vecchio
Salva
Casa.it
1/32
  • Street View
  • Map