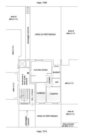
Appartamento in vendita Via Papa Giovanni Paolo II , Lomazzo
Salva
Casa.it
1/18
  • Street View
  • Map