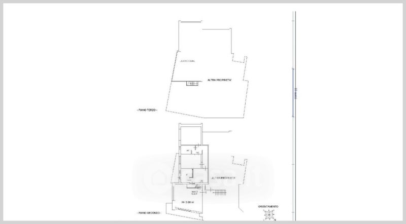
Appartamento in vendita Via Barzoni , Lonato del Garda
Salva
Casa.it
1/37
  • Street View
  • Map