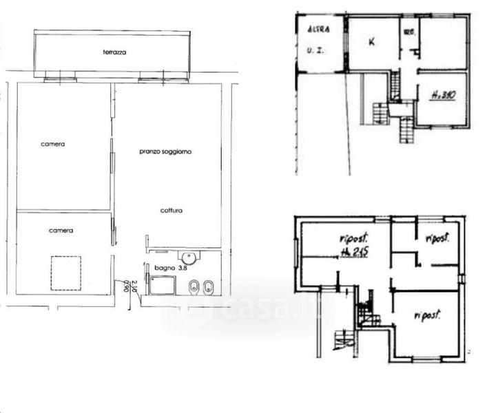
Appartamento in vendita Via XXIV Maggio 17 D, Lonato del Garda
Salva
Casa.it
1/17
  • Street View
  • Map