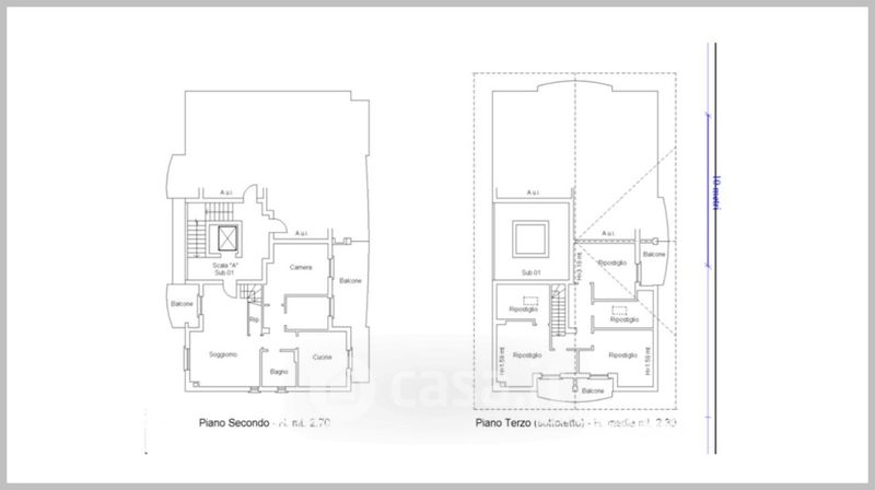
Appartamento in vendita Via XXIV Maggio , Lonato del Garda
Salva
Casa.it
1/39
  • Street View
  • Map