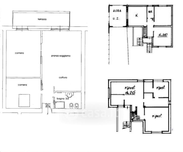
Appartamento in vendita Via Luigi Einaudi 12, Lumezzane
Salva
Casa.it
1/17
  • Street View
  • Map