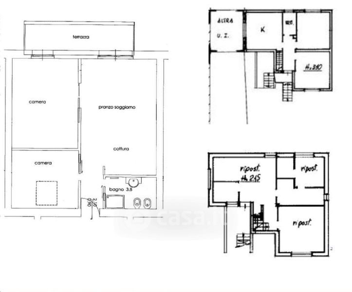
Appartamento in vendita Via Maestro Zanagnolo 19, Lumezzane
Salva
Casa.it
1/17
  • Street View
  • Map