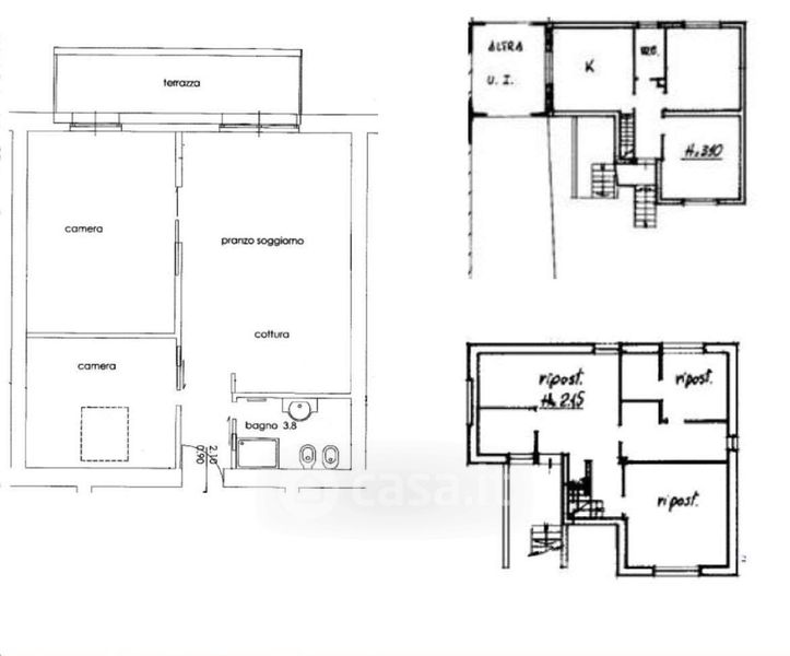
Appartamento in vendita Via Maestro Zanagnolo 19, Lumezzane
Salva
Contatta l'inserzionista
Casa.it