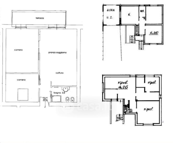
Appartamento in vendita Via Massimo d'Azeglio 87, Lumezzane
Salva
Casa.it
1/31
  • Street View
  • Map