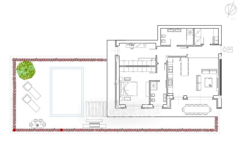
Appartamento in vendita Via Don Pietro Barberi 11 -3, Magenta
Salva
Casa.it
1/11
  • Street View
  • Map