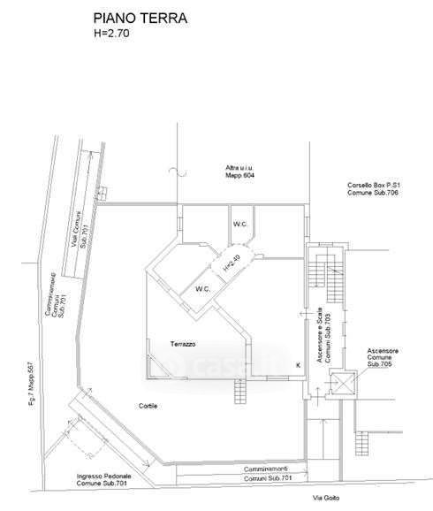
Appartamento in vendita Via Goito 11 /a, Magenta
Salva
Casa.it
1/24
  • Street View
  • Map