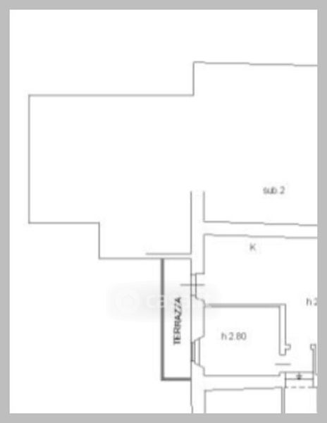
Appartamento in vendita Via San Biagio , Magenta
Salva
Casa.it
1/32
  • Street View
  • Map