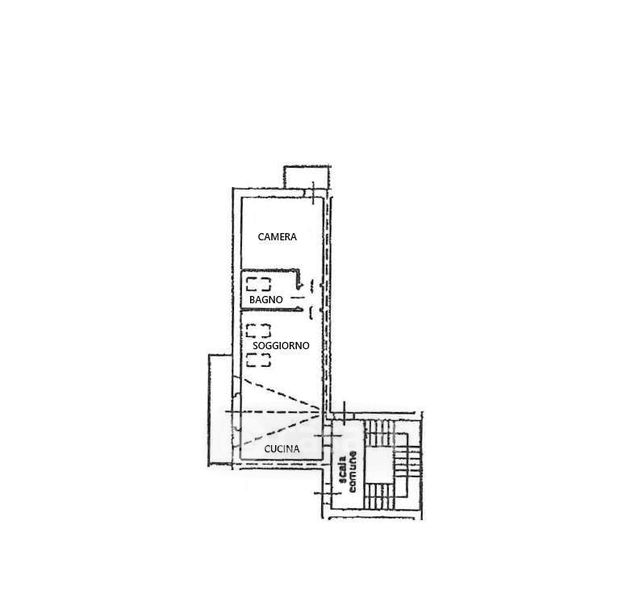
Appartamento in vendita Via Don Silvio Coira 2, Magnago
Salva
Casa.it
1/13
  • Street View
  • Map