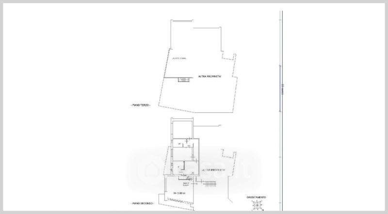
Appartamento in vendita Via Giulio Cesare , Mandello del Lario
Salva
Casa.it
1/32
  • Street View
  • Map