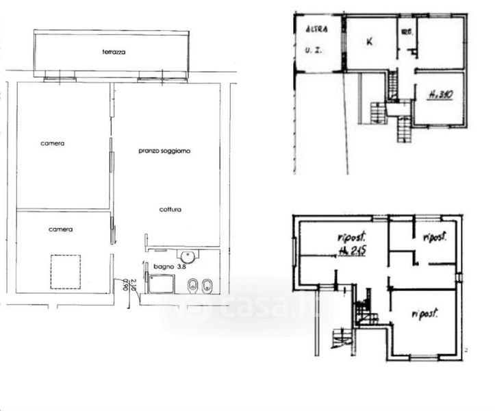
Appartamento in vendita Viale Catullo 31, Manerba del Garda
Salva
Casa.it
1/18
  • Street View
  • Map