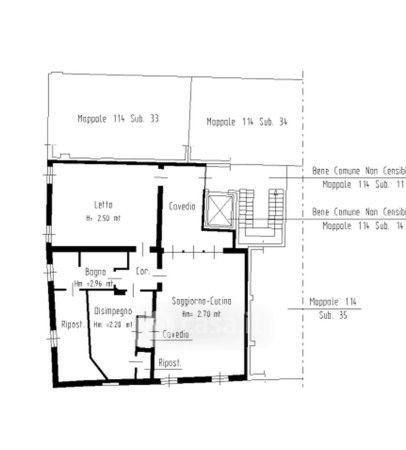
Appartamento in vendita Via Achille Sacchi , Mantova
Salva
Casa.it
1/17
  • Street View
  • Map