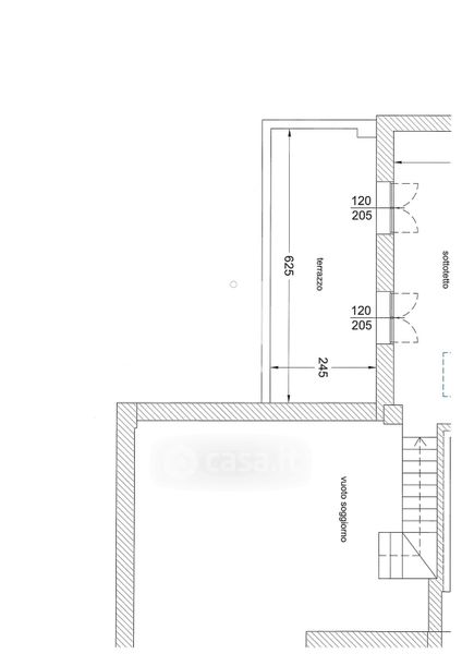
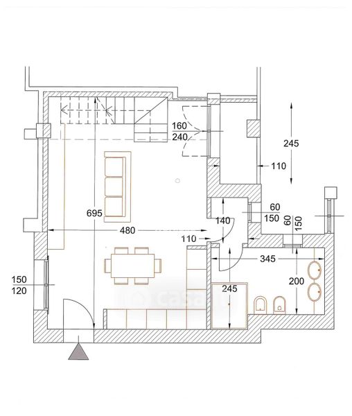
Appartamento in vendita Piazza Polveriera , Mantova
Salva
Casa.it
1/5
  • Street View
  • Map