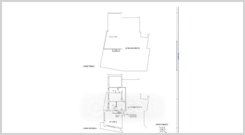
Appartamento in vendita Via de Mori , Mantova
Salva
Casa.it
1/32
  • Street View
  • Map