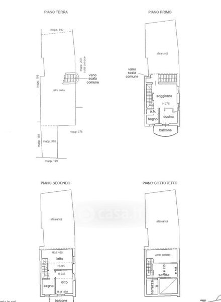
Appartamento in vendita Corso Giuseppe Garibaldi , Mantova
Salva
Casa.it
1/34
  • Street View
  • Map