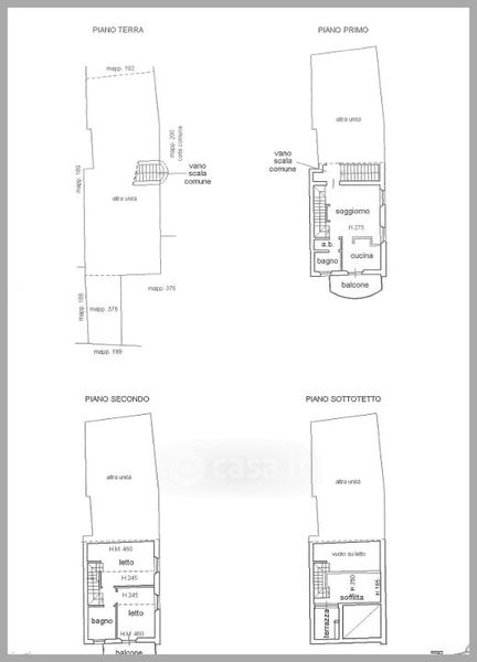
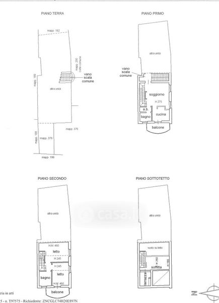
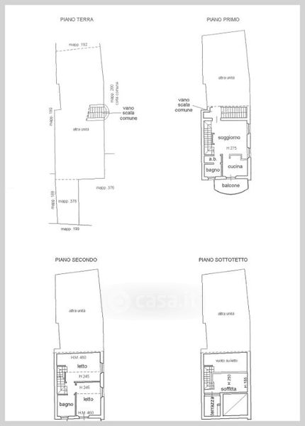
Appartamento in vendita Corso Giuseppe Garibaldi , Mantova
Salva
Casa.it
1/33
  • Street View
  • Map