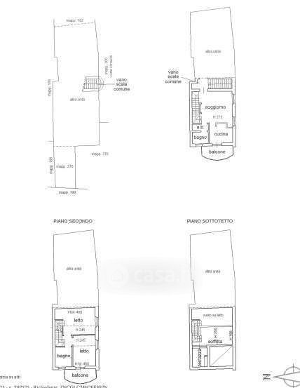
Appartamento in vendita Corso Giuseppe Garibaldi 157, Mantova
Salva
Casa.it
1/26
  • Street View
  • Map