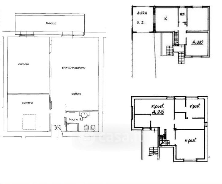
Appartamento in vendita Via Angelo e Agostino Pinetti 7, Martinengo
Salva
Casa.it
1/32
  • Street View
  • Map