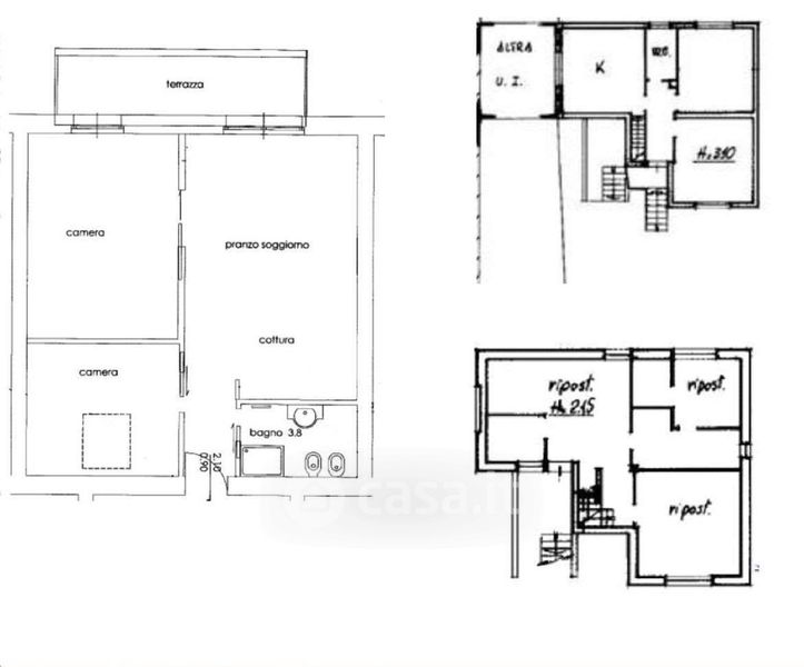
Appartamento in vendita Via Antonio Meucci 3, Marudo
Salva
Casa.it
1/13
  • Street View
  • Map