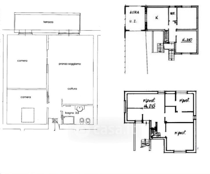
Appartamento in vendita Via Fratelli Marini 5, Massalengo
Salva
Contatta l'inserzionista
Casa.it