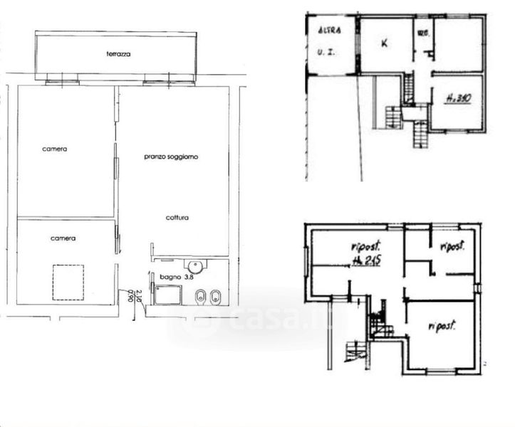
Appartamento in vendita Via San Pio da Pietrelcina 3, Massalengo
Salva
Casa.it
1/11
  • Street View
  • Map