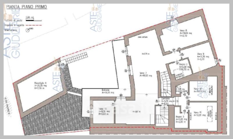
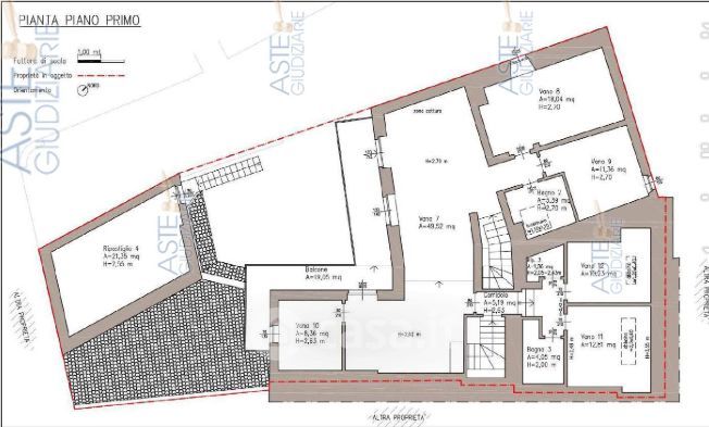
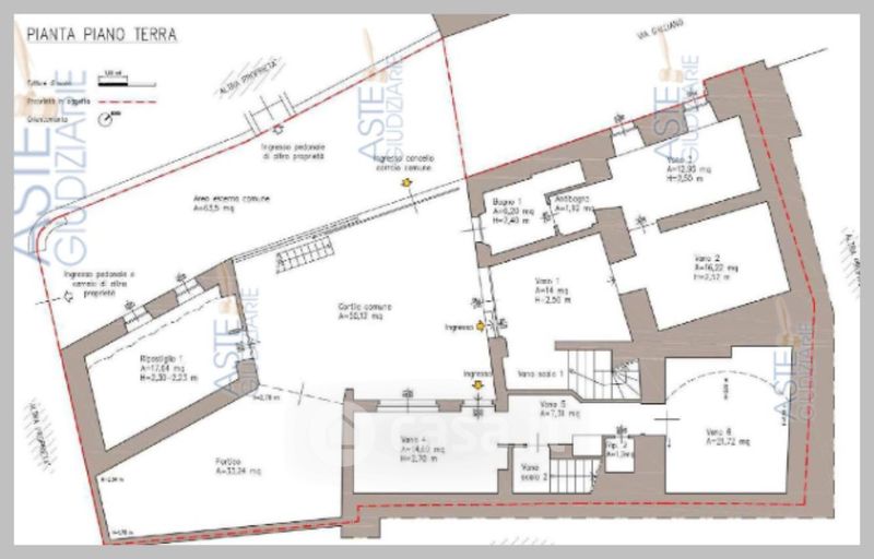
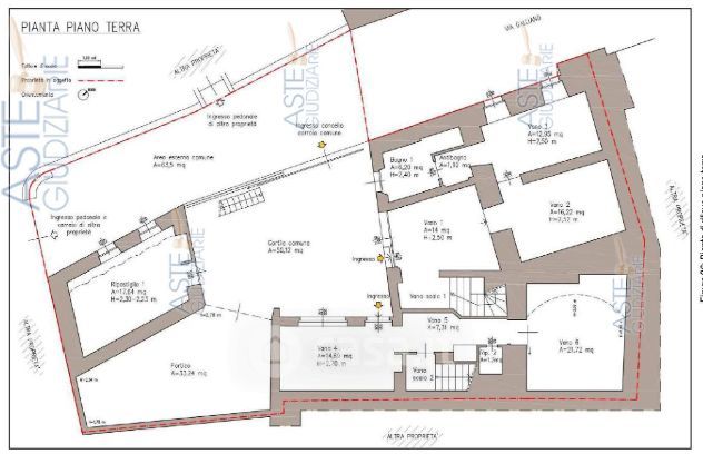
Appartamento in vendita Via Allende , Mazzano
Salva
Casa.it
1/32
  • Street View
  • Map