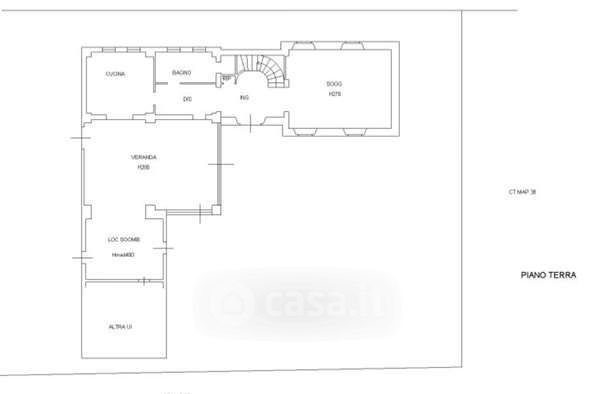
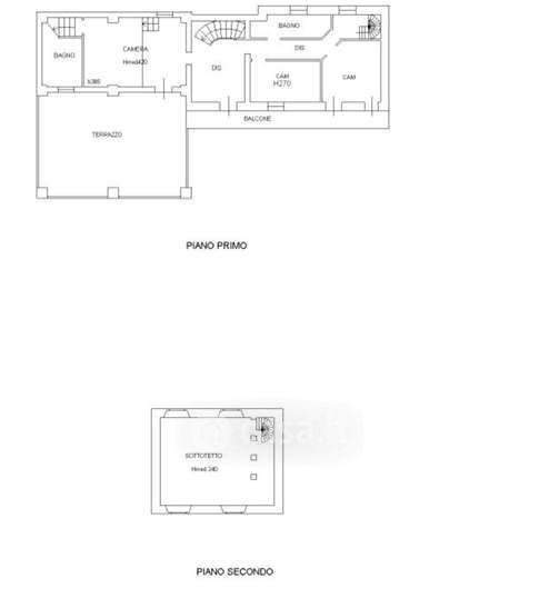
Appartamento in vendita Strada Frati 1, Mede
Salva
Casa.it
1/33
  • Street View
  • Map