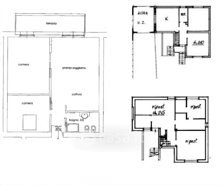
Appartamento in vendita Via Montorfano 11, Melegnano
Salva
Casa.it
1/17
  • Street View
  • Map